- 31. okt 2019 o 08:53
Projekt Wellpark v samotnom centre Žiliny má posledný voľný byt, ešte stále môže byť váš
Polyfunkčný projekt WellPark z dielne žilinskej developerskej spoločnosti LICITOR development čaká na posledné stavebné úpravy a čoskoro privíta nových obyvateľov. Spolu 37 bytových priestorov sa premení na domov a ako nás informoval developer, k dispozícii je posledný voľný byt.
Dizajnový WellPark vyrástol v samotnom centre Žiliny a je doslova obklopený zeleňou - okrem priľahlého Sadu na Studničkách je jeho súčasťou aj átrium s monumentálnym stromom Ginko Biloba. Architektúra v sebe spája modernosť a prírodné materiály - oceľová konštrukcia sa prelína so staromestskou tehlou, drevo a zeleň s betónom.
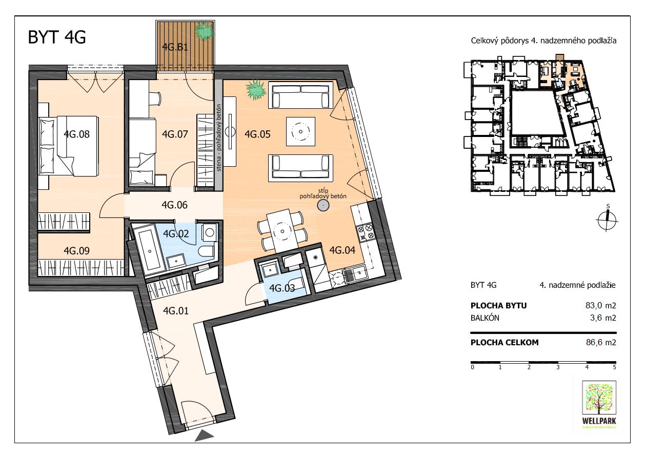
A práve na tomto mieste, len minútu chôdze od Mariánskeho a Hlinkovho námestia, máte poslednú šancu zaobstarať si vlastné bývanie - trojizbový byt s celkovou výmerou 83 metrov štvorcových. Posledný voľný kúsok sa nachádza na 4. podlaží a jeho balkón vám ponúkne výhľad nielen na Dubeň, ale aj na mestský park.

„Ideálnu svetelnosť bytu zaručujú vysoké stropy a veľkoformátové hliníkové okná s izolačným trojsklom a horizontálnymi elektrickými hliníkovými žalúziami. Vykurovanie zabezpečené teplovodným podlahovým kúrením rozdeleným na okruhy so samostatným riadením nástenným izbovým termostatom. Byt disponuje taktiež predprípravou na inteligentnú domácnosť, teda osvetlenie, vykurovanie aj tienenie môžete vo Vašej domácnosti ovládať hravo pomocou smartfónu,“ vysvetľuje Jozef Cisarik zo spoločnosti LICITOR reality.
K bytu, ktorý spĺňa najnáročnejší energetický štandard a je preto zaradený v kategórii A - Mimoriadne úsporný, prislúcha pivničná kobka. Nový majiteľ už nikdy nebude musieť riešiť parkovanie v centre, keďže je tu pripravená možnosť dokúpiť garážové státie.
Ak máte záujem stihnúť jedinečnú možnosť bývať v centre, no s dostatkom prírody na dosah, poponáhľajte sa a dohodnite si obhliadku na www.reality.licitor.sk
Minútky zo Slovenska
- 19:10 VIDEO: Počas víkendu bol sprístupnený prešovský skatepark. Po pár dňoch ho opäť zatvárajú
- 19:10 FOTO: Rodina pri Košiciach zažila cez víkend chvíle plné hrôzy, najprv začala horieť tuja, potom dom
- 19:10 Pozor, v okolí Soblahova videli medveďa, blížil sa k obľúbenej turistickej lokalite, obec vyzýva na opatrnosť
- 19:10 Šimečkovú zrejme lustrovali nezákonne. Daniari si na matku lídra PS založili spis Smotánka, padajú trestné oznámenia
- 19:10 V Brezne začal boj o primátora. Ten súčasný sa hnevá, že mu stretnutia s obyvateľmi narúšajú provokatéri
- 19:10 Obľúbená televízia po 15 rokoch končí. Diváci ju už nikde v ponuke nenájdu, za projektom stála známa tvár
- 18:51 Neďaleko Starej Ľubovne bojujú hasiči s požiarom, viaceré budovy sa mali ocitnúť v plameňoch
- 18:20 Dopravný podnik hľadá päť mamičiek z prešovskej MHD, ktoré majú za sebou výnimočný príbeh. Nominujte aj vy
- 18:20 Doprava v Piešťanoch sa skomplikuje. Kľúčové križovatky uzavrú, mesto vydalo varovanie aj pre futbalových fanúšikov
- 18:20 Opekanie vo Vrakunskom lesoparku sa mení, onedlho pribudne možnosť rezervácie aj poplatky
- 18:20 Horkýže Slíže chystajú po 5 rokoch veľkú novinku: Na Slížovici pokrstia nový album a odštartujú megaturné
- 18:20 V Beckove majú originálnu inštaláciu, na hrade osadili starý klavír, namiesto hudobníka na ňom hrá vietor
- 18:20 FOTO: Čo bude s Námestím mládeže vo Zvolene? Obyvatelia prišli s viacerými návrhmi ako priestor oživiť
- 18:20 FOTO: Nestihli ste prechádzku po rozkvitnutej Brdárke? Čerešňový raj očami fotografa vám vyrazí dych
- 17:59 V obci vzdialenej len pár kilometrov od Poltára videli až päť medveďov, v noci a ráno nechoďte von sami, vyzýva obec